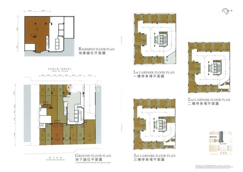
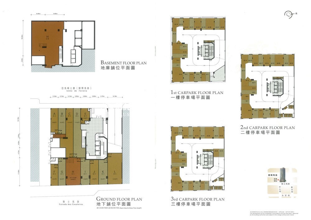
信智花園

樓盤簡介:

地段面積 : 954㎡

總建築面積 : 954㎡

舖位 : 12

住宅 : 92

車位 : 68

電單車位 : 31

總單位數目 : 203